POPIS

Dům 120 je vlajkovou lodí naší nabídky, navrženou pro maximální komfort i vícečlenné rodiny. Dominantou domu je rozlehlý obývací pokoj s kuchyňským koutem o výměře přes 40 m², který díky velkoformátovému prosklení působí neuvěřitelně vzdušně. Klidová zóna zahrnuje tři prostorné ložnice, které poskytují dostatek soukromí pro odpočinek i dětské hry, a praktickou pracovnu, kterou lze využít i jako pokoj pro hosty. Standardem jsou dvě plnohodnotné koupelny pro bezproblémový ranní provoz a prostorné zádveří. Bonus představuje pochozí půda přístupná po stahovacích schodech, která nabízí velkorysý úložný prostor pro vše, co zrovna nepotřebujete mít na očích.

PARAMETRY

Užitná plocha domu
119 m²
Počet podlaží
1
Počet ložnic
4-5
Stavební plocha
143,11 m²
Minimální plocha pozemku
413,35 m²
Výška na hřebeni
5,9 m
Úhel střechy
35°
Min. rozměry pozemku
16,09m × 24,69m
Objem budovy
680,89 m³

CENA

BASIC
od 3 814 699 Kč bez DPH
STANDART
od 5 077 435 Kč bez DPH
FLEXI
od 5 886 451 Kč bez DPH

VARIANTY

PROVEDENÍ

Stavíme moderní domy, které se přizpůsobí vašim možnostem i časovému plánu. Naše tři úrovně dokončení definují přesný rozsah prací a technologií, které pro vás zajistíme – od precizně vybudované hrubé stavby až po dům připravený k finálnímu položení povrchů. Vyberte si cestu, která nejlépe odpovídá vaší vizi o novém domově.

BASIC

Uzavřená hrubá stavba

Ideální pro ty, kteří si chtějí interiér dokončit svépomocí nebo s vlastními řemeslníky.

  • Kompletní hrubá stavba s masivní betonovou konstrukcí.
  • Zateplená fasáda, hotová střecha a okna.

  • Dům je bezpečně uzamčen a připraven pro vaše řemeslníky.

  • Ideální pro dokončení interiéru svépomocí.

od 3 814 699 Kč bez DPH

od 4 272 463 Kč vč. 12 % DPH

STANDART

Dům k finálním povrchům

Hotové lité podlahy, vnitřní omítky, stropy.
Zbývá jen položit podlahové krytiny, obklady, osadit dveře a vymalovat.

  • Vše z varianty Basic + kompletní vnitřní instalace.

  • Tepelné čerpadlo, podlahové vytápění, rozvody vody a elektro.

  • Hotové lité podlahy a vnitřní omítky.

  • Zbývá jen položit krytiny, osadit dveře a vymalovat.

od 5 077 435 Kč bez DPH

od 5 686 727 Kč vč. 12 % DPH

FLEXI

Dům podle vašich pravidel

Možnost klientských změn v dispozici a výběr nadstandardních materiálů už během stavby.

  • Dům s maximální svobodou při plánování.

  • Možnost posouvání vnitřních příček a změny dispozice.

  • Volitelný typ střechy, dekor oken a nadstandardní materiály.

  • Individuální přístup ke každému technickému detailu.

od 5 886 451 Kč bez DPH

od 6 592 825 Kč vč. 12 % DPH

PODROBNÝ

ROZSAH DODÁVKY

Projekt a příprava stavby

BASIC STANDARD FLEXI
Projekt typového domu
Základová deska

Cena platí pro pozemek se sklonem do 3 % a 2 řady ztraceného bednění. Náročnější zakládání (svažitost, geologie, radon) bude naceněno individuálně.

Zpevněné plochy

V místě budoucího stáni pro vozidla, makadam frakce 0-63 z důvodu manipulace těžké techniky

Svislé konstrukce

BASIC STANDARD FLEXI
Obvodové zdivo
Příčky

Střecha

BASIC STANDARD FLEXI
Vazníky

Sedlová střecha

Střešní krytina

Plech Onduline

Oplechování a okapový systém
Půdní schody a pochůzí část (OSB)
Izolace (foukaná vata / PUR)

Výplně otvorů

BASIC STANDARD FLEXI
Exteriér

Okna bílé, trojsklo, portál - terasa, vchodové dveře

Interiér

Vnitřní dveře a obložkové zárubně

Elektroinstalace

BASIC STANDARD FLEXI
Vnitřní rozvody, revize

Vypínače a zásuvky barva bílá, Schneider Asfora

Hromosvod
Připojení k síti

Do 15 metrů

Rozvody vody a odpadů

BASIC STANDARD FLEXI
Vnitřní rozvody
Připojení

Do 15 metrů

Omítky

BASIC STANDARD FLEXI
Vnitřní sádrové omítky

Včetně kovových rohů

Podlahy

BASIC STANDARD FLEXI
Anhydrit a zateplení podlahy

Polystyren EPS 150 - 17 cm, anhydritová podlaha - 6 cm

Lepený vinyl s pokládkou a nivelací
Soklové lišty a rohy

Stropy

BASIC STANDARD FLEXI
Sádrokartonový podhled
Výmalba

Bílá barva, penetrace

Fasáda

BASIC STANDARD FLEXI
Venkovní fasáda vč. soklu

20 cm EPS bílý, sokl 12 cm, silikonová omítka - zrno 1,5 mm, odstín dle vyběru

Venkovní parapety

Plechové

Zdravotechnické instalace

BASIC STANDARD FLEXI
Kompletní vybavení WC

Geberit, tlačítko, prkénko, mísa, umyvadlo, baterie, sifon, skříňka

Kompletní vybavení koupelny

Vana, sprchový kout, podomítková baterie (2x), umyvadlo se skříňkou, baterie, žebřík, samostatná skříňka

Obklady

BASIC STANDARD FLEXI
Obklady koupelny, WC, TM, zádveří

Vytápění

BASIC STANDARD FLEXI
Tepelné čerpadlo Nibe

Vzduch-voda s podlahovým teplovodním vytápěním a zásobníkem TUV 180l

POSTAVÍME VÁŠ 

DOMOV SPOLEČNĚ

Od výběru pozemku až po předání klíčů. Jsem tu, abych vám pomohl proměnit vizi o moderním bydlení ve skutečnost. Pojďme probrat vaše plány osobně.

Adam Motyka
Obchodní manažer

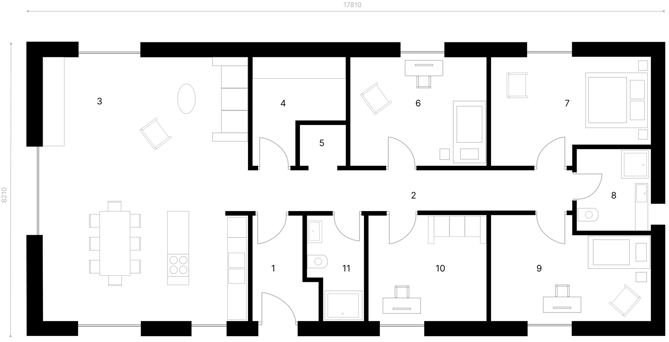
DŮM 120

PŮDORYS

01Zádveří
4,61 m²
02Chodba
10,40 m²
03Obývací pokoj + kk
42,49 m²
04Technická místnost
6,15 m²
05Šatna
1,47 m²
06Pokoj 1
11,65 m²
07Pokoj 2
12,26 m²
08Koupelna + WC 1
4,76 m²
09Pokoj 3
11,92 m²
10Pracovna
9,76 m²
11Koupelna + WC 2
4,16 m²
Užitná plocha celkem
119,63 m²

JAK TO

FUNGUJE

Cesta k vašemu novému domovu je jasně daná – od prvního nápadu až po předání klíčů se postaráme o každý detail, abyste se vy mohli jen těšit.

CO NENÍ SOUČÁSTÍ CENY

Vytýčení hranic pozemku, zaměření rozestavěné stavby pro účely hypotéky, geometrický plán skutečného provedení.

Rozvody PC sítě, EZS, svítidla, příprava pro kamery, bazén, fotovoltaiku.

Krb (s obezděním) či krbová kamna s komínem.

Drenáže základů, vsakovací jímka.

Akumulační nádrž na dešťovou vodu

Čistička odpadních vod

Nábytek, vestavěné skříně a kuchyňská linka.

Okenní žaluzie, rolety, závěsy, záclony.

Oplocení pozemku

Lapače střešních splavenin.

Okapový chodník, terasa.

Hrubé a jemné terénní úpravy.

Betonáž vstupní podesty vč. povrchové úpravy.

Zpevněné plochy.

Příprava pozemku (kosení trávy, kácení stromů či jiného porostu vč. likvidace dřevní hmoty).

Ale to neznamená, že to po vás neumíme vyřešit!

Dokážeme pro vás zajistit kompletní realizaci na klíč – stačí se podívat, co vše pro váš budoucí domov nabízíme nad rámec standardu.